
5 Star Garages For Sale in Wyndmoor, PA (suburban Philadelphia)
Starting at $315,000
5 Star Garages' collector car storage and work spaces will be available as rentals or individually owned condominium units. Delivery Summer 2026.
$315,000 (977 SF)
$825,000 (+/- 3,000 SF)
Contact: Scott Janzen
email: Janzen@CatalystRE.com
Call or text: 215-817-9315
About The Building
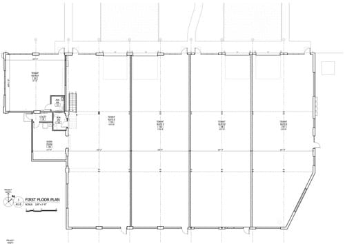
13,033 Square Foot 1920s Factory Building
To be fully renovated for delivery mid-2026
Allowable Uses: Car Collections, Maker Space, Office, Artist Studio, use your imagination! (Not zoned for Retail or Residential)
Individual spaces are available starting at 977 SF and up to 8,524 contiguous SF.
Finished spaces will have generous factory style (new) windows, polished concrete floors and exposed brick and structural steel in every unit.
All but the 977 SF space have a double height (22’) clerestory running through the center of the building; adjacent ceilings are 12’ to 14’ in height.
All of the larger spaces can be equipped with 2nd floor mezzanines.
The entire building is being gut-renovated, and will have the character of an old building, but with all new heating and air conditioning, windows, roof, insulation, electrical systems and lighting, plumbing, fire protection and alarm systems.
Each space will have its own central heating and air conditioning system, individual bathrooms, electrical service, glass garage door and pedestrian-door entrances.
Spaces can be entirely customizable as desired.















